24-storey student housing tower proposed near Phibbs bus exchange in North Vancouver

Toronto-based Forum Asset Management is proposing to build a significant student housing tower next to Highway 1’s Keith Road interchange, just beyond the north end of the Ironworkers Memorial Bridge.
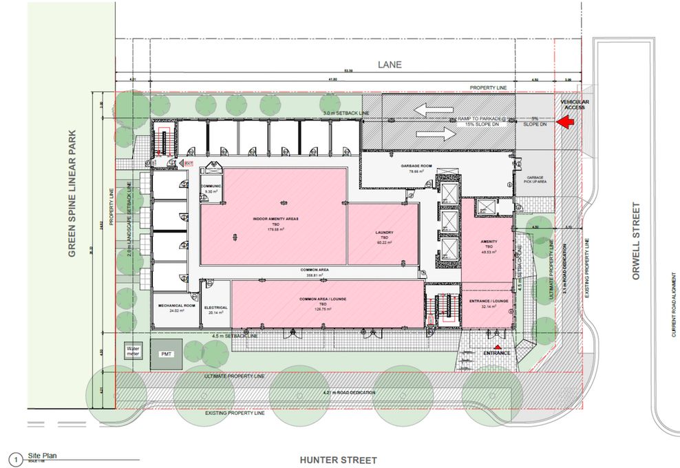
This would be a redevelopment of 1578-1590 Hunter St. — replacing four single-family lots — into a 24-storey tower with purpose-built rental student housing.
The site is about a 10-minute walk north of TransLink’s Phibbs bus exchange, and adjacent to Squamish Nation reserve lands, Denna Homes’ recently-built Seylynn Village mixed-use residential towers, and the proposed Seylynn Centre towers project, which is also by Denna. Such projects are within the municipal government’s designated Lynn Creek Town Centre.
- You might also like:
- Squamish Nation outlines possible land use concepts for North Shore reserves
- Burnaby City Council rejects off-campus SFU student housing proposal with 1,400 units
- Capilano University's first on-campus student residence under construction
- $150-million, 650-bed student housing tower approved for Langara-49th Avenue SkyTrain station
- Danish firm designs UBC's $560-million, 1,500-bed student housing complex
- Housing is the second-biggest factor in students' university choices in Canada: survey
Forum’s student housing tower would have 485 residential units, with small university campus-style dormitory configurations averaging from 166 sq. ft. for “micro units” to 222 sq. ft. for “nano units.”
There would be one underground level with 20 vehicle parking stalls and 385 secured bike parking spaces.
Altogether, the proposed floor area ratio (FAR) density is 6.28, meaning the total building floor area would be over six times the size of the 20,900 sq. ft. development site.

Site of 1578-1590 Hunter St., North Vancouver. (Google Maps)

Site of 1578-1590 Hunter St., North Vancouver. (District of North Vancouver)
Existing condition:

Site of 1578-1590 Hunter St., North Vancouver. (Google Maps)
Future condition:

Concept of the student housing tower at 1578-1590 Hunter St., North Vancouver. (Forum Asset Management)
District of North Vancouver Council performed a very preliminary review of the proposal in December 2025 to hear District staff’s concerns with the project.
District staff emphasized they support student housing projects and higher-density, transit-oriented development, but found the proposed density — exceeding existing policies — to be problematic. They would like to see a lower FAR density of 4.5 — the maximum density permitted for the site — and the inclusion of a below-market rental component, which is required for such density.
They also took issue with the form of the tower. It has a five-storey, box-shaped base podium, and a L-shape form for the remaining floor plates above the podium. The rooftop of the podium doubles as common outdoor amenity space for students. However, District staff raised concerns about aspects such as shadowing as a direct result of this L-shape form, and expressed a desire for tower floor plate configuration changes so that it is closer to a point tower form.

Concept of the student housing tower at 1578-1590 Hunter St., North Vancouver. (Forum Asset Management)

Concept of the student housing tower at 1578-1590 Hunter St., North Vancouver. (Forum Asset Management)

Concept of the student housing tower at 1578-1590 Hunter St., North Vancouver. (Forum Asset Management)

Concept of the student housing tower at 1578-1590 Hunter St., North Vancouver. (Forum Asset Management)

Concept of the student housing tower at 1578-1590 Hunter St., North Vancouver. (Forum Asset Management)
Other concerns were related to the small size of the units due to the developer’s traditional student housing dormitory approach, and the resulting livability, the suitability for residents, and the fluctuations in student housing demand, both short-term (summer seasonal) and long-term (trends based on post-secondary student enrolment).
Currently, there is a shortage of rental housing on the North Shore, and this is particularly the case with student housing, with Capilano University’s main campus in North Vancouver located nearby — a 20-minute walk, 10-minute bus ride, or four-minute drive. The university is in the process of building its first on-campus student housing building — 360 beds set to reach completion in September 2026 after some construction delays — and it also operates off-campus student accommodations with 250 beds through its lease of a former international boarding school on Dollarton Highway.

Concept of the student housing tower at 1578-1590 Hunter St., North Vancouver. (Forum Asset Management)

Concept of the student housing tower at 1578-1590 Hunter St., North Vancouver. (Forum Asset Management)
According to Forum’s website, one of the company’s real estate development focuses is in operating privately-owned and operated purpose-built student housing. In Eastern Canada, it has a portfolio of thousands of student housing units in numerous buildings, generally conveniently located near university campuses, including some located within city centres — capturing some of the major housing demand generated by students that is unmet on campuses.
In Fall 2025, Burnaby City Council rejected Forum’s proposal to build a significant residential complex of four buildings up to 16 storeys at the southeast base of Burnaby Mountain, containing about 1,400 homes — including 950 purpose-built student housing units and 450 secured purpose-built rental housing units for general units. The student housing component would strategically serve the needs of Simon Fraser University’s Burnaby Mountain campus, given the site’s close proximity.
However, Burnaby’s elected officials deemed the proposal to be too big for the location, and expressed concern over the potential environmental impacts to a nearby creek.
- You might also like:
- Squamish Nation outlines possible land use concepts for North Shore reserves
- Burnaby City Council rejects off-campus SFU student housing proposal with 1,400 units
- Capilano University's first on-campus student residence under construction
- $150-million, 650-bed student housing tower approved for Langara-49th Avenue SkyTrain station
- Danish firm designs UBC's $560-million, 1,500-bed student housing complex
- Housing is the second-biggest factor in students' university choices in Canada: survey