New renderings of Aritzia's flagship store and restaurant replacing a portion of the former Nordstrom in downtown Vancouver

Aritzia first formally announced in November 2025 that it will be one of four new retail tenants to fill the former Nordstrom department store space in downtown Vancouver.
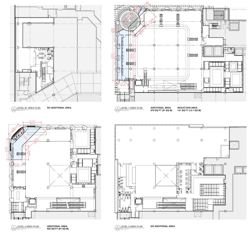
This will not be a simple move-in. Instead, it will involve a drastic reconfiguration of the 230,000 sq. ft., three-storey space at CF Pacific Centre mall, with Aritzia occupying a portion.
The Vancouver-based clothing and apparel giant has now submitted its development permit application, which provides additional details and more conceptual artistic renderings of the new flagship store. The new location will replace the mall’s existing Aritzia store and is in addition the current Robson Street flagship store, a few blocks to the west at the intersection with Thurlow Street.
- You might also like:
- Aritzia to open 40,000 sq. ft. Vancouver flagship store at former Nordstrom space
- Former Nordstrom store in downtown Vancouver to be subdivided into four retail units
- Erasing it from the skyline: The former Four Seasons Hotel Vancouver tower is now being demolished
- Lululemon to take over nearly 300,000 sq. ft. of office space above former Nordstrom at CF Pacific Centre in downtown Vancouver
- Times Square-style transformation ahead: 800 Granville project approved by Vancouver City Council
- Landmark tower with condos and a major hotel proposed next to Robson Square
- New landmark tree-inspired office tower concept proposed for revived Waterfront Station project
The new Aritzia store will occupy a four-storey volume of the former Nordstrom building’s southwest corner — at the intersection of Robson Street and Howe Street, prominently located just across from Robson Square.
This includes a small basement level to provide the store with a direct entrance from the indoor mall corridor, in addition to the street-level entrances. In preparation for this, Hugo Boss in the indoor mall corridor closed earlier this winter, as its unit sits at the future Aritzia entrance from the indoor mall.

Future Aritzia flagship store’s basement entrance from CF Pacific Centre’s indoor mall. (Kenneth Chan)
Last fall’s announcement mentioned the inclusion of an unspecified “casual-yet-elevated dining concept.” The development permit application confirms the restaurant will be located on the third level, within the same floor area as the former Nordstrom’s Bistro Verde restaurant, overlooking Robson Square. This third level, which includes the restaurant, spans nearly 15,000 sq. ft. Last month, the third level’s restaurant’s window facade was covered with temporary Aritzia branding.
The retailer is already known for opening its in-store A-OK Cafe concepts, including a location that opened within the Aritzia at Guildford Town Centre in 2025.
Existing condition:

Future Aritzia flagship store at the former Nordstrom space in downtown Vancouver. (Kenneth Chan)
Future condition:

Concept of the new Aritzia flagship store at the former Nordstrom space in downtown Vancouver. (Mallen Gowing Berzins Architecture/Aritzia)

Concept of the new Aritzia flagship store at the former Nordstrom space in downtown Vancouver. (Mallen Gowing Berzins Architecture/Aritzia)
Overall, Aritzia will occupy a total floor area of about 41,800 sq. ft. — roughly 18 per cent of the former Nordstrom space and more than three times larger than the existing Robson/Thurlow flagship store. New escalators will reach each Aritzia level.
The exterior facade for the store’s volume will be completely rebuilt to Aritzia’s specifications, with additional artistic renderings showing more perspectives of the new design. It will contrast significantly with the rest of the building’s existing exterior.
The first two storeys of the facade will feature tall, double-arched, chamfered window bays that “draw the eye upward and set a calm rhythm along the street. These openings lift the massing, bring light deeper into the interior, and create a clearer and more welcoming presence for pedestrians.” Aritzia’s facade will use textured brick materials to “add warmth and a more artisan scale at street level.”
At the building’s corner intersection will be the store’s main street-level entrance, located within a “new exterior rotunda, combined with a pulled-back concrete parapet wall and minor ramp regrading” — measures that will also improve pedestrian flow along Robson Street’s busy sidewalk.
Existing condition:

Future Aritzia flagship store at the former Nordstrom space in downtown Vancouver. (Kenneth Chan)
Future condition:

Concept of the new Aritzia flagship store at the former Nordstrom space in downtown Vancouver. (Mallen Gowing Berzins Architecture/Aritzia)
Furthermore, the application confirms the third level’s exterior facade will be a giant video screen, which is “incorporated thoughtfully into the architecture and create opportunities for creative and evolving content visible from key public vantage points including Granville Street and Robson Square.” This also aligns with the City of Vancouver’s new Granville Plan, which calls for an intensification of video screens at the intersection of Robson Street and Granville Street — the location of the former Nordstrom building — to reinforce a Vancouver version of New York City’s Times Square for the Granville Entertainment District.
“These elements align with the spirit of the Granville Street Plan which encourages creative digital expression at important downtown intersections,” reads the application.
Aritzia has previously noted that it intends to open the new flagship store in 2027.
The store’s design was created by the brand’s in-house flagship and special projects team, in collaboration with Vancouver-based Mallen Gowing Berzins Architecture.
“Everyday luxury is expressed through restraint, clarity, and attention to how Aritzia Vancouver meets the city. The intention is to create a place that is welcoming, elevated, and connected to the energy of downtown life,” continues the application.
“We recognize and value the ongoing work the city invests in shaping the downtown core. Our team see this project as an opportunity to participate in that effort with care and respect, and we look forward to collaborating closely with the planning department as the design continues to develop.”
Existing condition:

Future Aritzia flagship store at the former Nordstrom space in downtown Vancouver. (Kenneth Chan)
Future condition:

Preliminary concept of the new Aritzia Flagship Boutique store within the former Nordstrom space at CF Pacific Centre mall in downtown Vancouver. (Aritzia)

Concept of the new Aritzia flagship store at the former Nordstrom space in downtown Vancouver. (Mallen Gowing Berzins Architecture/Aritzia)

Concept of the new Aritzia flagship store at the former Nordstrom space in downtown Vancouver. (Mallen Gowing Berzins Architecture/Aritzia)
With Aritzia occupying just a portion of the former Nordstrom, this still leaves about 188,000 sq. ft. of available space for other tenants, specifically three other retailers. Work has been underway since last year to demolish Nordstrom’s interior furnishings to prepare a subdivision of the space for four new retailers, which will each have their own street entrances.
The three other retailers for the Cadillac Fairview-owned property have yet to be announced.
Directly above the former Nordstrom volume, the building also contains four office levels spanning nearly 300,000 sq. ft. of office space — previously almost entirely occupied by Microsoft Canada and Sony Pictures Imageworks’ global headquarters, which have since relocated to other locations in downtown Vancouver. Last year, Lululemon confirmed to Daily Hive Urbanized that it will take over the entirety of this office space above the former department store, with its gradual occupancy scheduled to begin in the second half of 2026.
To the north, there has been significant progress with the careful top-down demolition of the mall’s 30-storey hotel tower, formerly occupied by Four Seasons Hotel Vancouver. The incremental floor-by-floor demolition process began in Fall 2025, and it is expected to reach completion later in 2026 at the rooftop level of the base podium, which contains the indoor mall. Cadillac Fairview intends to build a new mixed-use tower at this site, with a hotel being one of the potential components, but no application has been submitted at this time.

Former Bistro Verde restaurant on the third floor of Nordstrom at CF Pacific Centre. (Kenneth Chan)

Former Bistro Verde restaurant on the third floor of Nordstrom at CF Pacific Centre. (Kenneth Chan)
- You might also like:
- Aritzia to open 40,000 sq. ft. Vancouver flagship store at former Nordstrom space
- Former Nordstrom store in downtown Vancouver to be subdivided into four retail units
- Erasing it from the skyline: The former Four Seasons Hotel Vancouver tower is now being demolished
- Lululemon to take over nearly 300,000 sq. ft. of office space above former Nordstrom at CF Pacific Centre in downtown Vancouver
- Times Square-style transformation ahead: 800 Granville project approved by Vancouver City Council
- Landmark tower with condos and a major hotel proposed next to Robson Square
- New landmark tree-inspired office tower concept proposed for revived Waterfront Station project