Vancouver Aquarium to transform outdoor pools with new walk-through underwater tunnel

Mar 26 2026, 2:22 am

A major revitalization project is being eyed for the Vancouver Aquarium, and it potentially could be one of the largest capital projects in the history of the attraction, which will celebrate its 70th anniversary this June.

The aquarium is looking to completely overhaul its B.C. Wild Coast pools — one of the main anchor features of the aquarium, located outdoors. These exhibits currently house sea lions and seals, particularly those rescued by the Vancouver Aquarium Marine Mammal Rescue Society.

A complete rehabilitation and redesign of these aging outdoor pools was first contemplated about 20 years ago, but the project stalled for various reasons, including the Vancouver Park Board’s previous highly acrimonious and public battle in the mid-2010s against the aquarium over keeping whales, dolphins, and porpoises — a practice that was completely discontinued years ago.

Now, the mechanical equipment and systems that support these outdoor pools are beyond their life expectancy.

Under the ownership of Herschend Family Entertainment, the aquarium is proposing to make repairs to the pool waterproofing, replace underwater viewing windows, and replace life-support mechanical systems and other infrastructure, which will enhance water quality, resulting in improved animal welfare, according to Vancouver Park Board staff.

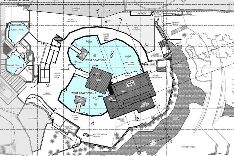
In the process, the renovation will result in pools with a smaller surface area and a reduction in overall water volume, and these tanks will subsequently be repurposed to introduce a new themed habitat.

A layout plan of the proposed renovation also appears to show that one of the smaller pools at the southwest corner of the B.C. Wild Coast area will be removed and replaced with a small building that includes a “beach,” stair tower, storage, and other back-of-house facilities.

vancouver aquarium

Existing condition of the outdoor pools of the B.C. Wild Coast area at the Vancouver Aquarium. (Kenneth Chan)

vancouver aquarium

Existing condition of the outdoor pools of the B.C. Wild Coast area at the Vancouver Aquarium. (Kenneth Chan)

Existing condition of the B.C. Wild Coast outdoor pools:

vancouver aquarium bc wild coast pools existing

Existing condition of the outdoor pools of the B.C. Wild Coast area at the Vancouver Aquarium. (Vancouver Park Board/Google Maps)

vancouver aquarium bc wild coast pools existing

Existing condition of the outdoor pools of the B.C. Wild Coast area at the Vancouver Aquarium. (Vancouver Aquarium)

Future condition of the B.C. Wild Coast outdoor pools:

vancouver aquarium bc wild coast pools future

Future condition of the outdoor pools of the B.C. Wild Coast area at the Vancouver Aquarium. (Vancouver Aquarium)

Notably, this diagram also shows an unspecified new “tunnel below” the area’s largest pool — a tunnel between the aquarium’s existing main building and the new small building.

Park Board staff’s report outlining the aquarium’s proposal does not specify whether the aquarium plans to introduce a new walk-through underwater glass tunnel experience, which is a common popular feature at many newer aquarium attractions around the world. However, this is the very case — the plan is to build such a see-through tunnel.

The aquarium submitted its development permit application to the City of Vancouver in December 2025. According to public records of this application, there will be a “new underwater pedestrian tunnel” from interior and exterior renovations to Levels 2 and 3, along with “new viewing platforms/exhibitry, and a stair/elevator tower connecting the interior and exterior components of the exhibit.”

“The proposed work consists of renovations to already built interior gallery space and modifications to the existing exterior exhibit area, all within the building’s current footprint and existing pools. The scope also includes the installation of new Life Support Systems (LSS) and associated mechanical, electrical, and filtration equipment to support the new B.C. Wild Coast aquarium habitats. Together, these improvements will enhance the visitor experience and improve life-support operations for aquatic exhibits.”

Aquarium Barcelona

Example of a walk-through, glass-enclosed, underwater tunnel at Aquarium Barcelona. (Kenneth Chan)

Ripley

Example of a walk-through, glass-enclosed, underwater tunnel at Ripley’s Aquarium of Canada in downtown Toronto. (Kenneth Chan)

Singapore Oceanarium

Example of a walk-through, glass-enclosed, underwater tunnel at Singapore Oceanarium. (Kenneth Chan)

Singapore Oceanarium

Example of a walk-through, glass-enclosed, underwater tunnel at Singapore Oceanarium. (Kenneth Chan)

Furthermore, the exhibit’s update will “reflect current marine habitats and highlight the research, rescue, and conservation work the Aquarium is known for.”

Other added features to the reimagined main pools for the B.C. Wild Coast area include various docks and floats.

Additionally, the project will increase walkway space for improved visitor circulation and provide additional weather-protected outdoor areas, such as new canopies. There will also be accessibility improvements to the facility.

Park Board staff fully endorse this project, which will be considered by the Park Board commissioners in a public meeting next week. After it receives the initial approval of the commissioners, City staff will begin the formal review of the development permit application. There will also be a subsequent building permit application submission, with the aquarium intending to move quickly on the project by starting construction in September 2026 — just after the peak visitation season — for an opening in late 2027.

The aquarium is working closely with an architectural design team and has already chosen a construction manager.

In outlining their support for the project, Park Board staff emphasize the aquarium is “a valuable partner” and that Herschend is prepared to make a “significant investment” to realize these drastic improvements.

“The Vancouver Aquarium is a valuable partner of the Park Board and represents a marquee attraction within Stanley Park. The Aquarium’s parent company, Herschend, has proposed to move ahead with an upgrade to the Aquarium’s B.C. Wild Coast pool exhibit. The upgrade requires a significant investment that will improve the overall guest experience at the Aquarium and continue to draw guests to Stanley Park for years to come,” state Park Board staff.

“Staff have assessed scenarios at the Aquarium location and support having a long-term successful tenant at the Aquarium provides the greatest financial return while advancing vibrancy and social connectivity within Stanley Park and the City. The proposed exhibit upgrade will optimize the Aquarium facility for the future and help drive additional visitation within Stanley Park.”

No further details of the upgrades or any conceptual artistic renderings of the reimagined attraction spaces have been provided at this time.

In response to an inquiry, a Vancouver Aquarium spokesperson told Daily Hive Urbanized today that the aquarium is “in the early planning stages of exciting exhibit enhancements and looks forward to sharing more details with the public in the coming months.”

The upgrade also represents a substantial revision of the aquarium’s previously approved concept in 2011 for overhauling these outdoor pools, with the previous concepts also featuring a new walk-through glass tunnel experience. However, unlike the cancelled redevelopment, this new plan is entirely within the aquarium’s leased footprint and does not require the removal of trees.

In an interview with Daily Hive Urbanized in Fall 2025, Vancouver Aquarium vice president and executive director Clint Wright shared that under Herschend, ever since the U.S.-based company acquired the attraction in 2021, about $10 million has already been reinvested into long-neglected infrastructure invisible to visitors due to deferred maintenance from the previous era of financial uncertainty — including years prior to the pandemic — before the change in ownership.

That $10 million largely went into the mechanical equipment and building systems that support the animals under the company’s care, with a portion also going toward upgrading the Graham Amazon Gallery.

Wright also said the aquarium’s attendance has now rebounded to pre-pandemic levels. However, under the new private ownership model, the aquarium now has to become completely financially self-reliant. Previously, under the former ownership of non-profit organization Ocean Wise, it could assemble some additional significant capital funding from donors, grants, and governments. Now, all spending — both capital and operating — must be supported by revenue generated at the admission gate.

The aquarium’s largest renovation and expansion was completed in 2014 at a cost of $45 million — covered by $10 million from Teck Resources, $15 million from the federal government, and $10 million from the provincial government — which provided the attraction with a new two-storey, 55,000 sq. ft. building with a new entrance, ticketing and admissions area, cafe, gift shop, children’s area, and courtyard, as well as additional gallery and visitor circulation space. This was intended to be the first phase of a $100-million renovation and expansion project planned by Ocean Wise.

vancouver aquarium

Vancouver Aquarium. (Kenneth Chan)

vancouver aquarium

Vancouver Aquarium. (Kenneth Chan)

vancouver aquarium

Vancouver Aquarium. (Kenneth Chan)

GET MORE URBANIZED NEWS

By signing up, you agree to receive email newsletters from Daily Hive.

You can unsubscribe at any time by clicking “unsubscribe” at the bottom of the email.

Daily Hive is a division of ZoomerMedia Limited, 70 Jefferson Avenue, Toronto ON M6K 3H4.

ADVERTISEMENT