Vancouver Park Board seeks new restaurant operator for Coal Harbour waterfront space

The Vancouver Park Board is looking for a cafe or restaurant tenant to fill the prominent commercial space situated at the middle of Harbour Green Park on the Coal Harbour waterfront in downtown Vancouver.
The restaurant space is tucked into the bottom of the grand staircase at the foot of Bute Street, fronting the public plaza with the major water spray feature.
Up until 2023, this was previously the location of TAP Shack. Prior to Tap & Barrel’s tenancy, the space was originally occupied by Mill Marine Bistro.
- You might also like:
- Coal Harbour seawall restaurant still unbuilt, years after Park Board approval
- Tap & Barrel's Olympic Village restaurant location to see big expansion in time for 2026 FIFA World Cup
- Hawksworth Restaurant Group to open new concept at The Boathouse Restaurant space at Kitsilano Beach
- The fate of family-run Shaughnessy Restaurant has been sealed unanimously
- Proposed new Vancouver floating hotel includes onboard public restaurants and bars
- HAVN Saunas Vancouver: How a WWII-era barge is slated for a new life on the Kitsilano waterfront
- 'Charge barges' to power new B.C. battery ferries, doubling as passenger docks
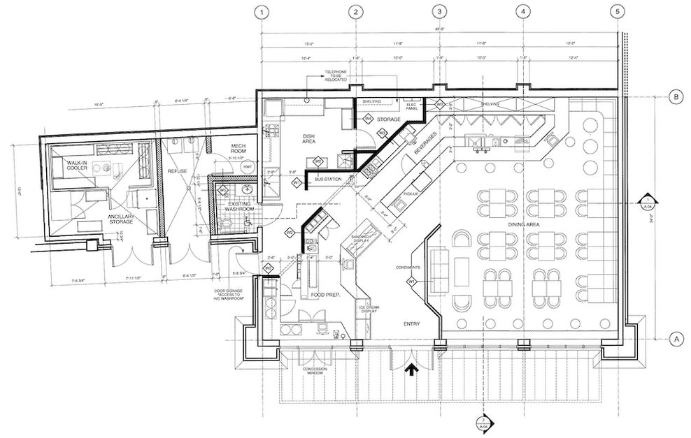
This is a smaller restaurant space, spanning about 1,700 sq. ft. of dining and kitchen area, not including the unit’s storage, washroom, and other back-of-house spaces.

Former TAP Shack space at Harbour Green Park. (Google Maps)

Former TAP Shack space at Harbour Green Park. (Tap & Barrel)

Former TAP Shack space at Harbour Green Park. (Google Maps)

Former TAP Shack space at Harbour Green Park. (Google Maps)

Former TAP Shack space at Harbour Green Park. (Google Maps)

Former TAP Shack space at Harbour Green Park. (Google Maps)
In addition to the indoor space, there would also be an outdoor patio opportunity.
It is noted that the selected operator would not be responsible for the operations and maintenance of the park’s water spray feature, plaza, and external washrooms. However, the proponents are encouraged to envision a patio plan that “contributes positively to the public plaza experience, beyond basic seating and table service,” such as lighting, seasonal programming, live music and entertainment, and small events.
Park Board staff state in their request for proposals (RFP) that they are seeking an experienced operator with a proven track record.
The municipal government anticipates Harbour Green Park will see more foot traffic over time, as it is not only a highly prominent location but because of the potential future ferry service by CIRQL Ferries (formerly known as Greenline Ferries).
CIRQL Ferries will operate from the dock at Harbour Green Park — located directly in front of the cafe/restaurant unit — to provide passenger-only ferry service reaching Bowen Island and the Sunshine Coast, using 150-seat passenger vessels and running up to seven roundtrips per day year-round from this site.

Former TAP Shack space at Harbour Green Park. (Google Maps)

Former TAP Shack space at Harbour Green Park. (Tap & Barrel)

Former TAP Shack space at Harbour Green Park. (Google Maps)

Former TAP Shack space at Harbour Green Park. (Google Maps)

Former TAP Shack space at Harbour Green Park. (Google Maps)

Former TAP Shack space at Harbour Green Park. (Google Maps)
Like other municipally-owned spaces leased for revenue-generating commercial restaurant or cafe operations, the operator would also be responsible for all activities and costs related to the renovation and operation of the space for their specific needs.
The operator would have a total lease term of up to 15 years, including an initial term of five years.
The rent payment to the Park Board would be the greater of a fixed annual minimum rent guarantee paid monthly or a set percentage of gross revenues from all food and beverage sales paid monthly. A minimum annual rent of $90,000 and a percentage rent of at least 6.5 per cent of gross revenues is required. Additionally, there would also be a payment in lieu of property taxes.
The space was designed by Besharat-Friars Architects and built by Marathon Development, which also built the condominium towers that overlook the park and other amenities in the area, including the dock.
The Park Board’s bidding process for an operator closes on May 14, 2026.
This is not to be confused for the long-stalled plan to build a new multi-storey, destination restaurant location at the easternmost end of Harbour Green Park — within a void space fronting the Coal Harbour seawall, embedded into the overall structure of the Vancouver Convention Centre’s West Building. In November 2015, the Park Board selected a joint partnership between Sequoia Company of Restaurants and McDougall Holdings to build and operate a flagship restaurant at this space.
But more than a decade later, there have been no signs of any progress on advancing this opportunity, with investments already previously made on the restaurant building structure design.

Site of the future Harbour Green Park restaurant, next to Vancouver Convention Centre’s West Building, as of January 2023. (Kenneth Chan/Daily Hive)

Artistic rendering of the new restaurant planned for the eastern end of Harbour Green Park. (City of Vancouver)
- You might also like:
- Coal Harbour seawall restaurant still unbuilt, years after Park Board approval
- Tap & Barrel's Olympic Village restaurant location to see big expansion in time for 2026 FIFA World Cup
- Hawksworth Restaurant Group to open new concept at The Boathouse Restaurant space at Kitsilano Beach
- The fate of family-run Shaughnessy Restaurant has been sealed unanimously
- Proposed new Vancouver floating hotel includes onboard public restaurants and bars
- HAVN Saunas Vancouver: How a WWII-era barge is slated for a new life on the Kitsilano waterfront
- 'Charge barges' to power new B.C. battery ferries, doubling as passenger docks