12 buildings up to 48 storeys with 2,700 homes planned for Surrey City Centre

A massive new mixed-use development planned for Surrey City Centre will bring more than 2,700 new homes to the area, including hundreds of long-term rental units.
The long-term, multi-phased redevelopment spans nine acres on a land assembly with the addresses of 10520 132 St. and 13270-13352 105A Ave., which is situated just west of the intersection of University Drive and 105A Avenue and immediately south of Whalley Athletic Park.
It is also just west of the BC Lions’ practice facility, which could be redeveloped into the City of Surrey’s new mixed-use entertainment complex with a 10,000-seat indoor arena, a hotel, and commercial and residential uses.
- You might also like:
- City of Surrey begins bidding process to select developer, sports tenant, and operator for new 10,000-seat City Centre Arena
- Bold landmark towers to create a gateway for Surrey City Centre
- City of Surrey plans over 1,800 rental homes in four towers at Gateway SkyTrain station
- Planned condo tower in Surrey pivots to 100% rental housing after pre-sales
- Five-tower 'Georgetown West' project planned for Surrey City Centre
As well, the development site is roughly a 10-minute walk southeast to SkyTrain’s Surrey Central Station and bus exchange or north to Gateway Station.

Site of 10520 132 St. and 13270-13352 105A Ave., Surrey. (Google Maps)

Site of 10520 132 St. and 13270-13352 105A Ave., Surrey. (Google Maps)

Site of 10520 132 St. and 13270-13352 105A Ave., Surrey. (Google Maps)

Concept of 10520 132 St. and 13270-13352 105A Ave., Surrey. (Arcadis/Onni Group)
This latest major proposal by local developer Onni Group would replace four existing low-rise apartment buildings built in the early 1970s, containing 321 apartment units. City of Surrey policies require the developer to replace these units — including the same combined number of bedrooms — at 10 per cent below-market rents for the first 20 years.
Following these requirements, the project will include 321 replacement secured purpose-built rental homes, including four studio units, 202 one-bedroom units, 112 two-bedroom units, and three three-bedroom units.
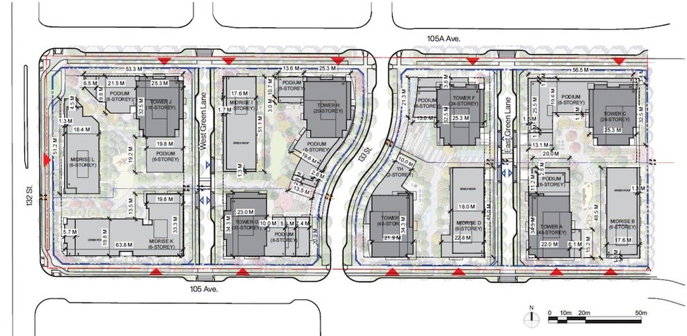
Across the site, there will be a total of 12 new buildings, including seven high-rise towers between 16 storeys and 48 storeys in height — with the tallest towers located on the eastern side of the site. In addition to the attached low-rise base podiums for each tower, there will be five standalone low-rise buildings, which will be mainly used for rental housing.
Strata market ownership condominium homes will make up the balance of this project’s residential uses, with a total of 2,384 condominium homes — a unit size mix of 162 studio units, 681 one-bedroom units, 1,031 two-bedroom units, 258 two-bedroom units with a den, and 246 three-bedroom units.

Concept of 10520 132 St. and 13270-13352 105A Ave., Surrey. (Arcadis/Onni Group)

Concept of 10520 132 St. and 13270-13352 105A Ave., Surrey. (Arcadis/Onni Group)

Concept of 10520 132 St. and 13270-13352 105A Ave., Surrey. (Arcadis/Onni Group)

Concept of 10520 132 St. and 13270-13352 105A Ave., Surrey. (Arcadis/Onni Group)
In total, this project will generate 2,705 new homes — a net gain of about 2,384 units compared to what already exists on the site — and increase the local school catchment’s enrolment demand by about 259 school-age children.
Additionally, the development offers 24,000 sq. ft. of local-serving retail/restaurant uses on the ground level, with such uses activating the project’s easternmost frontage with 105A Avenue and the new north-south 133 Street extension bisecting the site.
Up to seven underground levels will provide 2,724 vehicle parking stalls, including 277 stalls for commercial uses.
The total building floor area will reach 2.178 million sq. ft., establishing a floor area ratio density of a floor area that is 5.5 times larger than the size of the land assembly. Onni Group is working with architectural firm Arcadis.
The entire development will be built in eight phases over 30 to 35 years, with the initial phases on the eastern side of the property set to be implemented over the next five to 10 years. This also includes a phased strategy of achieving the rental housing component over four phases.

Concept of 10520 132 St. and 13270-13352 105A Ave., Surrey. (Arcadis/Onni Group)

Concept of 10520 132 St. and 13270-13352 105A Ave., Surrey. (Arcadis/Onni Group)

Concept of 10520 132 St. and 13270-13352 105A Ave., Surrey. (Arcadis/Onni Group)
- You might also like:
- City of Surrey begins bidding process to select developer, sports tenant, and operator for new 10,000-seat City Centre Arena
- Bold landmark towers to create a gateway for Surrey City Centre
- City of Surrey plans over 1,800 rental homes in four towers at Gateway SkyTrain station
- Planned condo tower in Surrey pivots to 100% rental housing after pre-sales
- Five-tower 'Georgetown West' project planned for Surrey City Centre